Taxeren

0

m2 leefbare ruimte

Bed (1)

0

Slaapkamers

Blauwprint

0

Bouwjaar

Welkom aan de Zomerdijk 17 in Meerstad: een prachtige, energiezuinige hoekwoning gelegen op een ruim perceel met veel licht, privacy én comfort. Deze woning is volledig gasloos en voorzien van een warmtepomp, 12 zonnepanelen en vloerverwarming. Met een doordachte indeling, vier slaapkamers en een aangebouwde garage biedt deze woning alles wat je zoekt voor comfortabel en toekomstbestendig wonen.

De woning ligt in een autoluwe straat in het geliefde Meerstad, een moderne, ruim opgezette en groene wijk aan de oostkant van Groningen. De wijk is uniek vanwege de combinatie van wonen, water en natuur. Rondom het Woldmeer vind je volop mogelijkheden om te wandelen, fietsen, suppen, varen of gewoon te genieten van de rust en ruimte. Meerstad is ontworpen met aandacht voor duurzaamheid, groen en leefkwaliteit.

Het is een jonge, levendige wijk waar gezinnen, stellen en alleenstaanden zich snel thuis voelen. Hoewel Meerstad een rustige en groene woonwijk is, zijn voorzieningen binnen handbereik. Op loopafstand bereik je de supermarkt, de basischool en kinderopvang. Het nabijgelegen Harkstede en de stad Groningen bieden een breder aanbod aan winkels, horeca en scholen. Met de auto ben je binnen 15 minuten in het centrum van Groningen. De ringweg (A7) is snel en gemakkelijk bereikbaar. De bushalte ligt om de hoek met een directe verbinding naar de binnenstad van Groningen. Fietsend ben je in ca. 20 minuten in de binnenstad.

INDELING:

Begane grond: je betreedt de woning via een nette entree, waar zich de meterkast en een toilet bevinden. Vanuit de hal kom je in de open leefruimte, bestaande uit een moderne keuken aan de voorzijde en een royale woonkamer aan de achterzijde. De keuken is strak en functioneel ingericht met moderne inbouwapparatuur zoals een inductiekookplaat, vaatwasser, magnetron, oven, koelkast en vriezer. Hier kook je met plezier voor vrienden en familie. De woonkamer is opvallend licht dankzij de grote raampartijen en openslaande deuren naar de tuin. Er is voldoende ruimte voor een gezellige zithoek én een ruime eettafel.

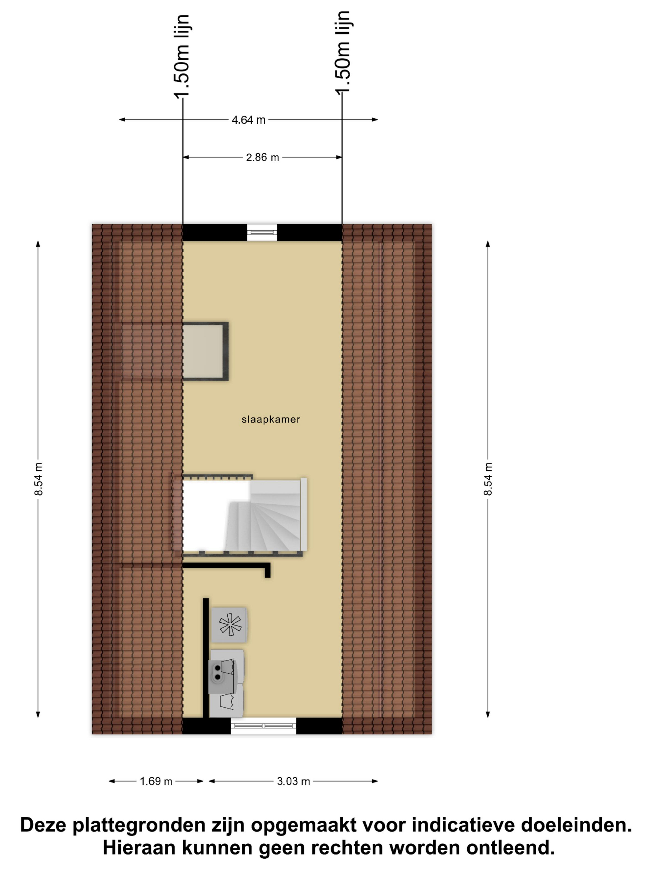
Eerste verdieping: op de eerste verdieping bevinden zich drie slaapkamers, waarvan twee als slaapkamer zijn ingericht en één momenteel in gebruik is als kantoor. Deze laatste ruimte leent zich uitstekend als werkplek, hobbykamer of logeerkamer. De raampartijen aan de achterkant van de kamers zijn voorzien van rolluiken, wat zorgt in de zomer voor koele kamers. De badkamer is voorzien van een ligbad, inloopdouche, wastafelmeubel en een tweede toilet.

Tweede verdieping: de zolderverdieping is een volwaardige extra woonlaag. Hier bevindt zich een ruime vierde slaapkamer, voorzien van een groot dakraam voor extra licht. Daarnaast is er een aparte wasruimte met aansluitingen voor wasmachine, droger en warmtepomp (die ook kan koelen). Verder is er nog praktische bergruimte achter de knieschotten.

Buiten: één van de grote pluspunten van deze woning is de fraai aangelegde, zonnige tuin. Dankzij de ligging op een hoekperceel profiteer je hier van extra ruimte én veel privacy. De tuin is gesitueerd op het zuiden, wat betekent dat je de hele dag heerlijk kunt genieten van de zon. Ideaal voor lange zomeravonden, een barbecue met vrienden of gewoon ontspannen met een boek. De tuin is deels betegeld en deels groen aangelegd, wat zorgt voor een prettige balans tussen sfeer en onderhoudsgemak. Er is voldoende ruimte voor een loungehoek, eettafel en eventueel een speeltoestel voor kinderen. Via de openslaande deuren in de woonkamer sta je direct in deze fijne buitenruimte, wat het binnen-buitenleven compleet maakt. Aan de zijkant van de woning bevindt zich de aangebouwde garage. Deze garage biedt volop mogelijkheden: je kunt hier niet alleen een auto parkeren, maar de ruimte ook gebruiken als werkplaats, opslag of hobbyruimte. Daarnaast biedt de oprit plek voor meerdere auto's, wat parkeren altijd eenvoudig maakt.

INFO:
- Gasloos en energiezuinig;
- Voorzien van een warmtepomp en 12 zonnepanelen;
- Ruime en lichte woonkamer met openslaande deuren naar de tuin;
- Moderne open keuken met inbouwapparatuur;
- Vier slaapkamers;
- Aangebouwde garage en veel bergruimte;
- Heerlijke zonnige tuin;
- Gelegen op een ruim hoekperceel in een rustige en kindvriendelijke wijk.

Ben je op zoek naar een moderne, instapklare en duurzame woning met veel ruimte, gelegen in een rustige en groene omgeving vlakbij de stad? Dan is Zomerdijk 17 in Meerstad precies wat je zoekt. Deze woning biedt niet alleen comfort en luxe, maar ook de ideale balans tussen natuur, rust en stadse bereikbaarheid. Maak snel een afspraak voor een bezichtiging en ervaar zelf het woongenot van deze prachtige woning!

*Deze informatie is door ons met de nodige zorgvuldigheid samengesteld. Onzerzijds wordt echter geen enkele aansprakelijkheid aanvaard voor enige onvolledigheid, onjuistheid of anderszins, dan wel de gevolgen daarvan. Alle opgegeven maten en oppervlakten zijn indicatief.