Wenckebachlaan 34 Groningen

Taxeren

0

m2 leefbare ruimte

Bed (1)

0

Slaapkamers

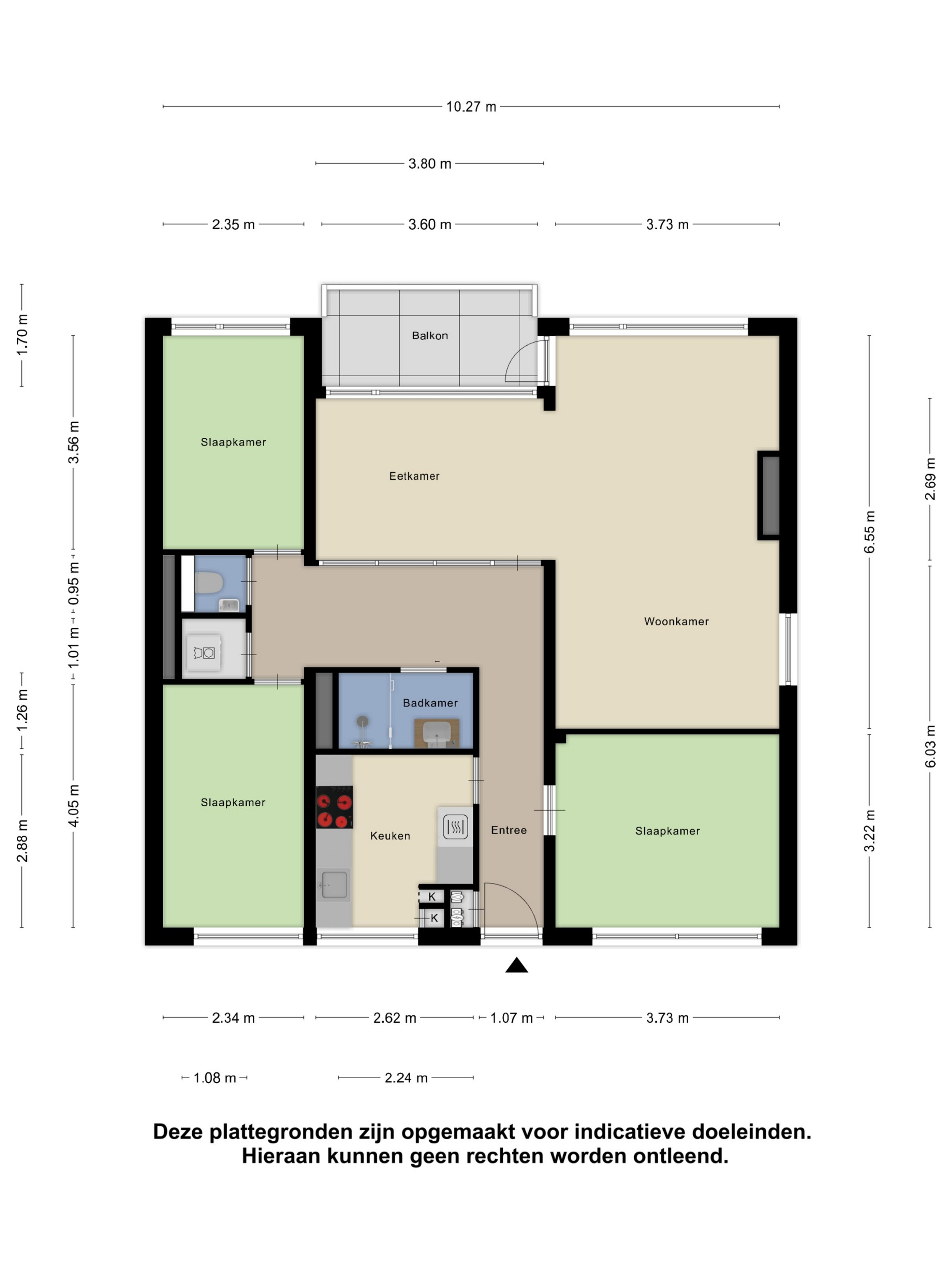
Blauwprint

0

Bouwjaar

In een rustige woonwijk op een aantrekkelijke locatie vind je dit uitstekend onderhouden en gemoderniseerde hoekappartement van maar liefst 95 m². Het appartement ligt op een ideale locatie: op steenworp afstand van het prachtige Hoornse Meer en met een directe verbinding naar het levendige stadscentrum van Groningen. Met drie ruime slaapkamers, een zonnig balkon op het zuidwesten, biedt dit appartement een unieke combinatie van ruimte, comfort en praktische gemakken. Hier geniet je dagelijks van een lichte, warme woonomgeving dankzij de grote raampartijen en de slimme indeling.

Waarom wonen aan de Wenckebachlaan 34?

Een plek waar wonen écht genieten is:
• Ruime woonkamer en eetkamer: de ideale plek om tot rust te komen, met toegang tot het zonnige balkon.
• Zuidwestelijk gelegen balkon: geniet hier tot laat op de dag van de zon en het vrije uitzicht over de brede groenstrook.
• Moderne keuken (2018): voorzien van inbouwapparatuur, ideaal voor de kookliefhebber.
• Luxe badkamer en toilet (2023): de badkamer is in 2023 volledig vernieuwd met een moderne inloopdouche en strak wastafelmeubel. Ook het toilet is in 2023 vernieuwd.
• Drie lichte slaapkamers: alle kamers profiteren van veel daglicht dankzij de grote raampartijen.
• Inpandige berging (15 m²): ruimte voor extra opslag.

Een duurzame en toekomstbestendige woning:
• Gedeeltelijk voorzien van kunststof kozijnen en HR++ glas.
• CV-ketel uit 2020: energiezuinig en betrouwbaar.
• Subsidies beschikbaar: informeer naar de mogelijkheden om de woning verder te verduurzamen en naar wens te moderniseren.

Het energielabel G is vastgesteld volgens de huidige rekenmethode voor energielabels. Dit lage label is voornamelijk te wijten aan de hoekligging van het appartement, ondanks de aanwezigheid van kunststof kozijnen en HR++ glas en de lage maandelijkse stookkosten.
Vanuit de VvE zijn er mogelijke toekomstplannen om het dak te vernieuwen en te isoleren. Volgens de labeladviseur zou het appartement met dakisolatie al richting een energielabel C kunnen gaan.

Een groene, rustige én strategische locatie:
• Groene woonomgeving: het prachtige Hoornse Meer ligt letterlijk om de hoek. Ideaal voor ontspannende wandelingen, fietsen of watersportactiviteiten.
• Dichtbij de stad: slechts enkele minuten fietsen naar het bruisende centrum van Groningen.
• Alle voorzieningen binnen handbereik: winkels, scholen, sportfaciliteiten en medische voorzieningen bevinden zich op korte afstand.
• Uitstekende bereikbaarheid: goede verbindingen met openbaar vervoer en snelle toegang tot de ringweg van Groningen.

Praktische informatie:
• Woonoppervlakte: 95 m²;
• Bijdrage VvE: €183,- per maand;
• Berging: inpandige berging van ca. 15 m².

Optioneel is een Garagebox te verkrijgen, vraag ons gerust naar de mogelijkheden.

Een unieke kans die je niet wilt missen! Wonen aan de Wenckebachlaan 34 betekent genieten van ruimte, comfort en een prachtige ligging. Plan vandaag nog een bezichtiging en ontdek zelf waarom dit hoekappartement jouw ideale nieuwe thuis kan zijn.

*Deze informatie is door ons met de nodige zorgvuldigheid samengesteld. Onzerzijds wordt echter geen enkele aansprakelijkheid aanvaard voor enige onvolledigheid, onjuistheid of anderszins, dan wel de gevolgen daarvan. Alle opgegeven maten en oppervlakten zijn indicatief.