Taxeren

0

m2 leefbare ruimte

Bed (1)

0

Slaapkamers

Blauwprint

0

Bouwjaar

Op een rustige en groene locatie in Paterswolde staat deze verrassend ruime tussenwoning met vrij uitzicht op een groenstrook. De woning is de afgelopen jaren op belangrijke onderdelen vernieuwd, waaronder de keuken, badkamer en de uitbouw op de begane grond. In combinatie met vier slaapkamers, een zonnige tuin en een externe garagebox maakt dit een comfortabele en complete gezinswoning.

De woning ligt in een rustige en groene woonomgeving. Prachtige landgoederen zoals De Braak en Lemferdinge, evenals natuurgebied De Onlanden, liggen in de directe omgeving – perfect voor wandelen, fietsen en recreëren in de natuur. Daarnaast zijn winkels, scholen en sportvoorzieningen in de directe omgeving aanwezig en is de stad Groningen snel bereikbaar. Ook de uitvalswegen richting A28 en A7 liggen op korte afstand.

Indeling
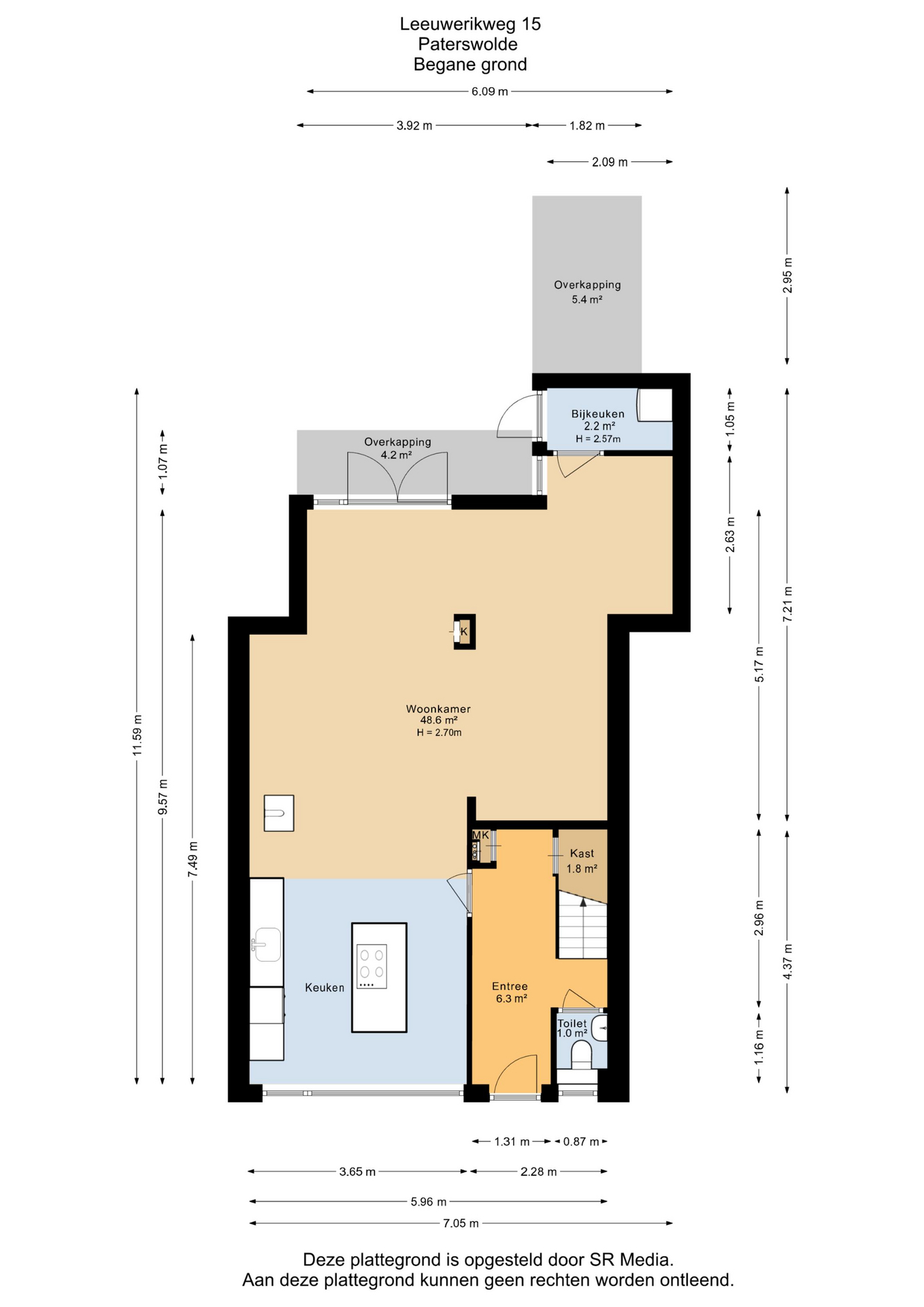
Begane grond: via de ruime voortuin bereik je de entree van de woning. In de hal met meterkast, trapopgang en moderne toilet (2023) betreed je de woning. Aan de voorzijde bevindt zich de moderne open keuken (2023) van Bruynzeel, uitgevoerd met hoogwaardige inbouwapparatuur zoals een downdraft afzuigsysteem, Quooker en een praktische kooktafel.

De woonkamer is aan de achterzijde uitgebouwd (2023), wat zorgt voor een royale en lichte leefruimte. De uitbouw is voorzien van vloerverwarming en biedt volop ruimte voor een comfortabele zithoek met zicht op de tuin. Absolute eyecatcher is de authentieke tegelkachel met keramische tegels uit Bad Ischl (circa 150 jaar oud), voorzien van een nieuw binnenwerk van chamotblokken. Deze zorgt voor een schone, efficiënte verbranding en draagt bij aan lagere energiekosten én een unieke sfeer in huis. Aansluitend aan de woonkamer bevindt zich de bijkeuken, een praktische ruimte voor extra opslag, witgoed en provisie.

Via de woonkamer bereik je de zonnige achtertuin, die is voorzien van een overkapping. De tuin is bovendien achterom bereikbaar, wat extra praktisch is voor bijvoorbeeld fietsen.

Eerste verdieping: de overloop geeft toegang tot drie slaapkamers van goed formaat. De badkamer (2023) is modern en stijlvol uitgevoerd, voorzien van een ruime inloopdouche, wastafelmeubel en tweede toilet.
Daarnaast is er een extra ruimte aanwezig – de voormalige badkamer – die momenteel als bergruimte wordt gebruikt. Deze ruimte biedt volop mogelijkheden en kan naar eigen wens worden ingericht, bijvoorbeeld als wasruimte of walk-in closet.

Tweede verdieping: via een vaste trap bereik je de tweede verdieping. Hier bevindt zich een ruime vierde slaapkamer, mede dankzij de kunststof dakkapel. Een fijne, lichte ruimte die zich uitstekend leent als slaapkamer, werkplek of hobbyruimte. Daarnaast is er extra bergruimte aanwezig en bevindt zich hier de cv-opstelling.

Buitenruimte: de achtertuin is zonnig gelegen, verzorgd aangelegd en voorzien van een overkapping. Dankzij de achterom is de tuin praktisch in gebruik. Daarnaast beschikt de woning over een externe garagebox, ideaal voor opslag of het stallen van een auto.

Duurzaamheid:
De woning is volledig geïsoleerd en klaar voor de toekomst:
- Energielabel A;
- 8 zonnepanelen;
- Vloerverwarming in de uitbouw;
- Hoog rendement keramische kachel.

INFO:
- Uitbouw met vloerverwarming (2023);
- Luxe Bruynzeel keuken (2023) met downdraft en Quooker;
- Nieuwe badkamer en toilet (2023);
- Authentieke tegelkachel met keramische tegels;
- 4 slaapkamers;
- Kunststof dakkapel;
- Zonnige tuin met overkapping en achterom;
- Bijkeuken;
- Externe garagebox;
- Vrij uitzicht op een groenstrook.

Zie jij jezelf hier al wonen? Neem dan contact met ons op en plan een bezichtiging!

*Deze informatie is door ons met de nodige zorgvuldigheid samengesteld. Onzerzijds wordt echter geen enkele aansprakelijkheid aanvaard voor enige onvolledigheid, onjuistheid of anderszins, dan wel de gevolgen daarvan. Alle opgegeven maten en oppervlakten zijn indicatief.