Taxeren

0

m2 leefbare ruimte

Bed (1)

0

Slaapkamers

Blauwprint

0

Bouwjaar

Aan de rand van Gravenburg, op een vrije en groene locatie nabij de stad Groningen, staat deze uitstekend onderhouden vrijstaande woning met grote garage. Hier geniet je van rust, ruimte en privacy, terwijl alle voorzieningen – onder meer een basisschool op loopafstand – én de binnenstad van Groningen zich op korte afstand bevinden. Een ideale combinatie van comfortabel wonen en een uitstekende bereikbaarheid.

De woning beschikt over een woonoppervlakte van circa 140 m² en verkeert in een goede conditie. Dankzij de complete isolatie, kunststof kozijnen met triple glas, hybride warmtepomp, airconditioning en maar liefst 30 zonnepanelen is de woning zeer energiezuinig en voorzien van energielabel A++. Dit resulteert in een aangenaam woonklimaat én zeer lage energielasten van circa €100,- per maand.

De ligging tegen de wijk Gravenburg maakt deze locatie bijzonder aantrekkelijk. In de directe omgeving bevinden zich supermarkten, scholen, sportfaciliteiten en openbaar vervoer. Ook de uitvalswegen zijn snel bereikbaar en de binnenstad van Groningen is op korte fietsafstand gelegen. Hier woon je rustig en vrij, met alle dagelijkse voorzieningen binnen handbereik.

INDELING
Begane grond: entree met hal en meterkast, waarna je doorloopt naar de ruime en lichte woonkamer met een prettige lichtinval en voldoende ruimte. De keuken is aan de achterzijde van de woning gesitueerd en uitgevoerd met diverse inbouwapparatuur (vernieuwd in 2020). Vanuit de keuken is er toegang tot een tussenhal, waar zich het toilet bevindt. Daarnaast geeft de keuken toegang tot een praktische bijkeuken en een ruime kelder, ideaal voor extra provisie- en bergruimte. Tevens is er op de begane grond een extra kamer die uitstekend geschikt is als kantoor, speelkamer of hobbyruimte.

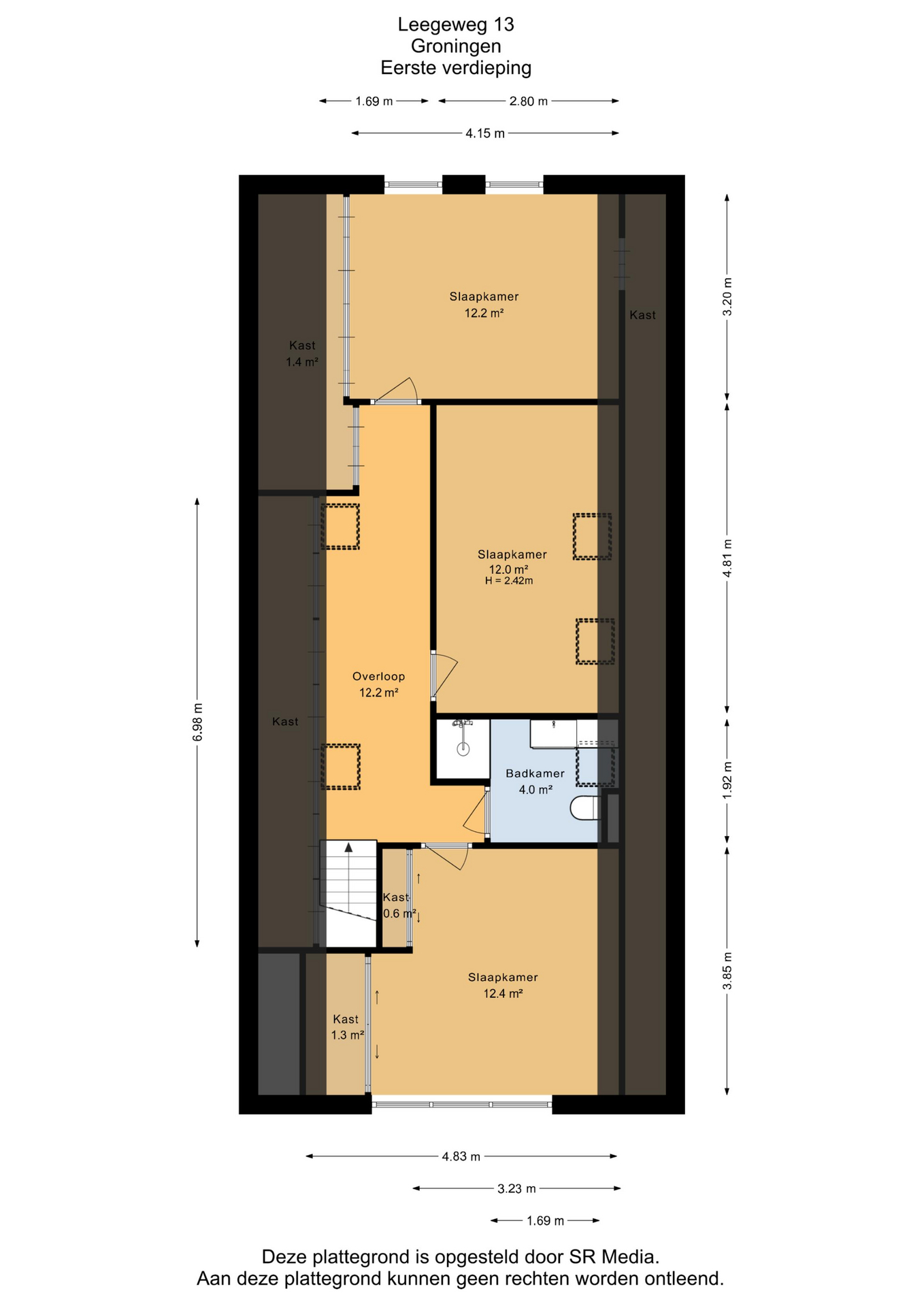
Eerste verdieping: overloop met toegang tot drie ruime slaapkamers en de badkamer. De slaapkamers zijn praktisch ingedeeld en zijn voorzien van voldoende kastruimte. De badkamer is voorzien van een douche, hangend toilet en een bijpassende wastafelmeubel. Daarnaast is er voldoende bergruimte aanwezig.

Buitenruimte: de woning staat op een ruim perceel met twee opritten en een vrijstaande garage. De verzorgde tuin biedt meerdere zitplekken en een fijne mate van privacy, waardoor je optimaal kunt genieten van het buitenleven. De vrije ligging en de groene, waterrijke omgeving versterken het gevoel van rust en ruimte.

Een groot pluspunt van deze woning is de riante garage, die inpandig te bereiken is via de bijkeuken. De garage biedt volop ruimte voor het stallen van een auto, fietsen en het creëren van een werk- of hobbyruimte. Dankzij de royale afmetingen en de praktische indeling is deze ruimte multifunctioneel te gebruiken.

INFO:
- Woonoppervlakte ca. 140 m²;
- Energielabel A++;
- Volledig geïsoleerd;
- Kunststof kozijnen met triple glas;
- 30 zonnepanelen;
- Hybride warmtepomp en airconditioning;
- Energielasten van circa €100,- per maand.
- Vloerverwarming op de begane grond;
- Garage en eigen oprit;
- Aan de rand van Gravenburg;
- Voorzieningen dichtbij - basisschool op loopafstand.

Een energiezuinige, ruime en goed onderhouden vrijstaande woning met veel praktische ruimte, een grote garage en twee opritten, ideaal voor wie vrij wil wonen met alle voorzieningen en de stad Groningen dichtbij.

*Deze informatie is door ons met de nodige zorgvuldigheid samengesteld. Onzerzijds wordt echter geen enkele aansprakelijkheid aanvaard voor enige onvolledigheid, onjuistheid of anderszins, dan wel de gevolgen daarvan. Alle opgegeven maten en oppervlakten zijn indicatief.