Taxeren

0

m2 leefbare ruimte

Bed (1)

0

Slaapkamers

Blauwprint

0

Bouwjaar

Stijlvol, duurzaam en verrassend ruim – deze volledig gerenoveerde bovenwoning aan de Hamburgerstraat 44b tilt wonen in de populaire Professorenbuurt naar een nieuw niveau.

In de populaire en geliefde Professorenbuurt bieden wij deze schitterend gerenoveerde bovenwoning aan. Gelegen aan de sfeervolle Hamburgervijver, woon je hier op een rustige, groene locatie terwijl de bruisende binnenstad van Groningen op korte fietsafstand ligt. Deze woning is werkelijk tot in detail vernieuwd en uitgebreid, waaronder een recent geplaatste dakopbouw, hoogwaardige isolatie, kunststof kozijnen met HR++ glas, vloerverwarming, zonnepanelen en een hybride warmtepomp. Een energiezuinige en toekomstbestendige woning op één van de mooiste plekjes van de wijk.

Daarnaast beschikt de woning over maar liefst twee balkons en een fantastisch dakterras van ruim 21m², waardoor je altijd een plek in de zon (of schaduw) vindt. De afwerking is modern, tijdloos en van hoge kwaliteit. Hier kun je direct in.

Ligging – Wonen aan de Hamburgervijver in de Professorenbuurt
De Hamburgerstraat bevindt zich in de Professorenbuurt, een rustige en karakteristieke buurt die bekendstaat om haar brede lanen, groene straten en prettige, ontspannen woonsfeer. De ligging aan de Hamburgervijver geeft de straat een bijzondere charme; je wandelt hier zo langs het water, geniet van het groene uitzicht of pakt een bankje mee in het zonnetje.

De wijk biedt uitstekende voorzieningen: supermarkten, speciaalzaken, scholen, horeca en sportvelden liggen allemaal in de directe omgeving. Het centrum van Groningen, het Noorderplantsoen en het UMCG zijn binnen enkele minuten fietsen bereikbaar. Ook de verbinding met de ringweg en de uitvalswegen is optimaal.

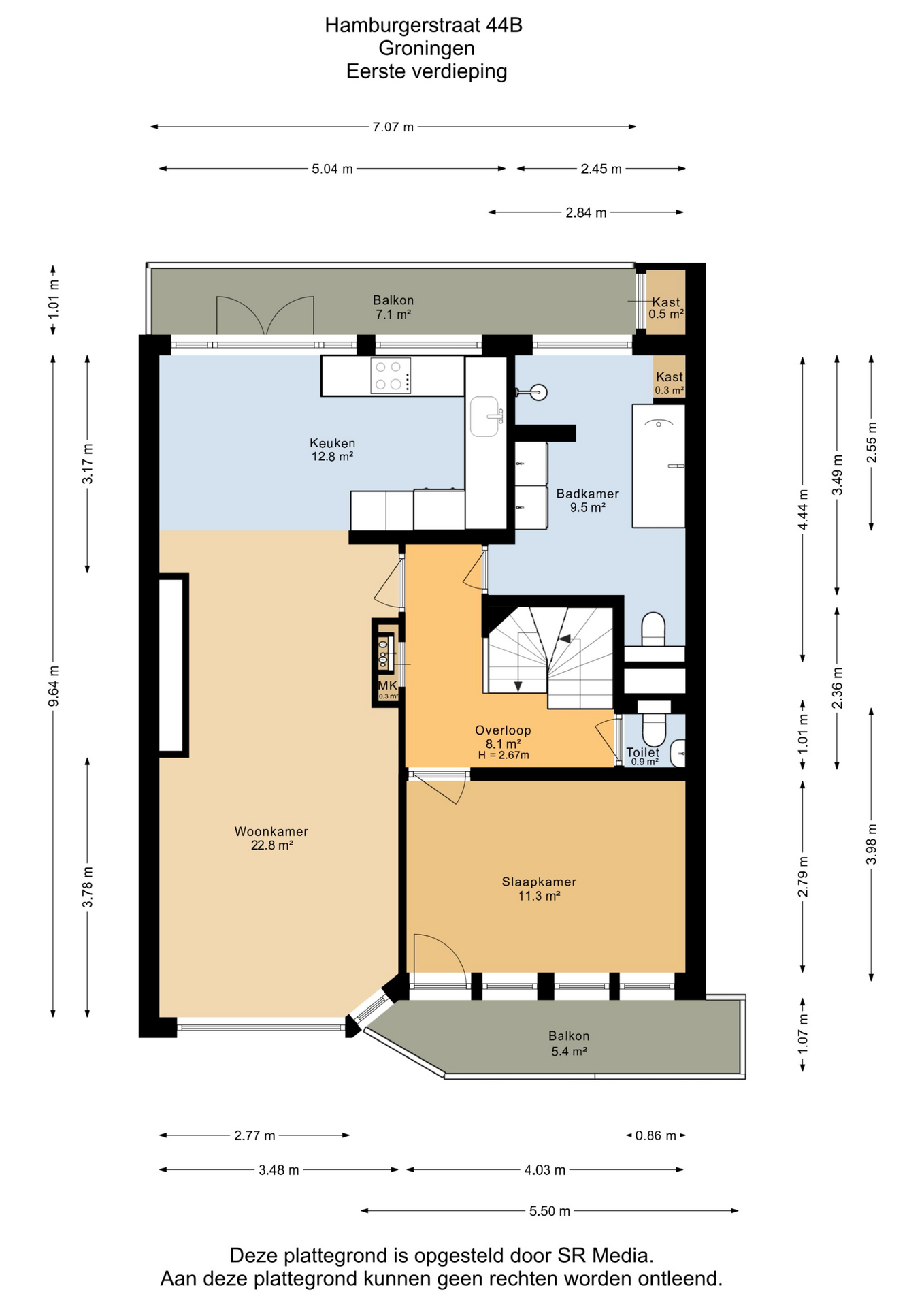
INDELING
Eerste verdieping: wanneer je de woning via de trap bereikt en binnenstapt op de eerste verdieping, valt direct de warme en luxe uitstraling op van de prachtige visgraatvloer met vloerverwarming. De lichte woonkamer strekt zich uit over de volledige diepte van de woning en wordt omringd door grote raampartijen die zorgen voor een aangename hoeveelheid daglicht. De ruimte voelt modern, fris en uitnodigend aan, met strakke wanden en een open verbinding met de keuken.

Aan de achterzijde bevindt zich de compleet vernieuwde en modern uitgevoerde keuken. Deze is voorzien van veel werkruimte, hoogwaardige inbouwapparatuur en een rustige kleurstelling die prachtig aansluit op de rest van het interieur. Vanuit de keuken loop je zo het balkon op, waar je kunt genieten van de zon en het uitzicht over de omgeving. Ook aan de voorzijde is er een balkon, toegankelijk via de ruime slaapkamer die eveneens op deze verdieping te vinden is. Deze slaapkamer is licht, comfortabel en ideaal in te richten als slaapkamer, logeerkamer of werkkamer.

Verder vind je op deze verdieping een luxe, recent compleet vernieuwde badkamer met een ligbad, een grote inloopdouche, dubbel wastafelmeubel en toilet. Het is een ruimte die aanvoelt als een privéspa, dankzij de rustige kleuren en hoogwaardige materialen. Er is op deze verdieping zelfs een tweede toilet. Deze is in dezelfde stijl afgewerkt.

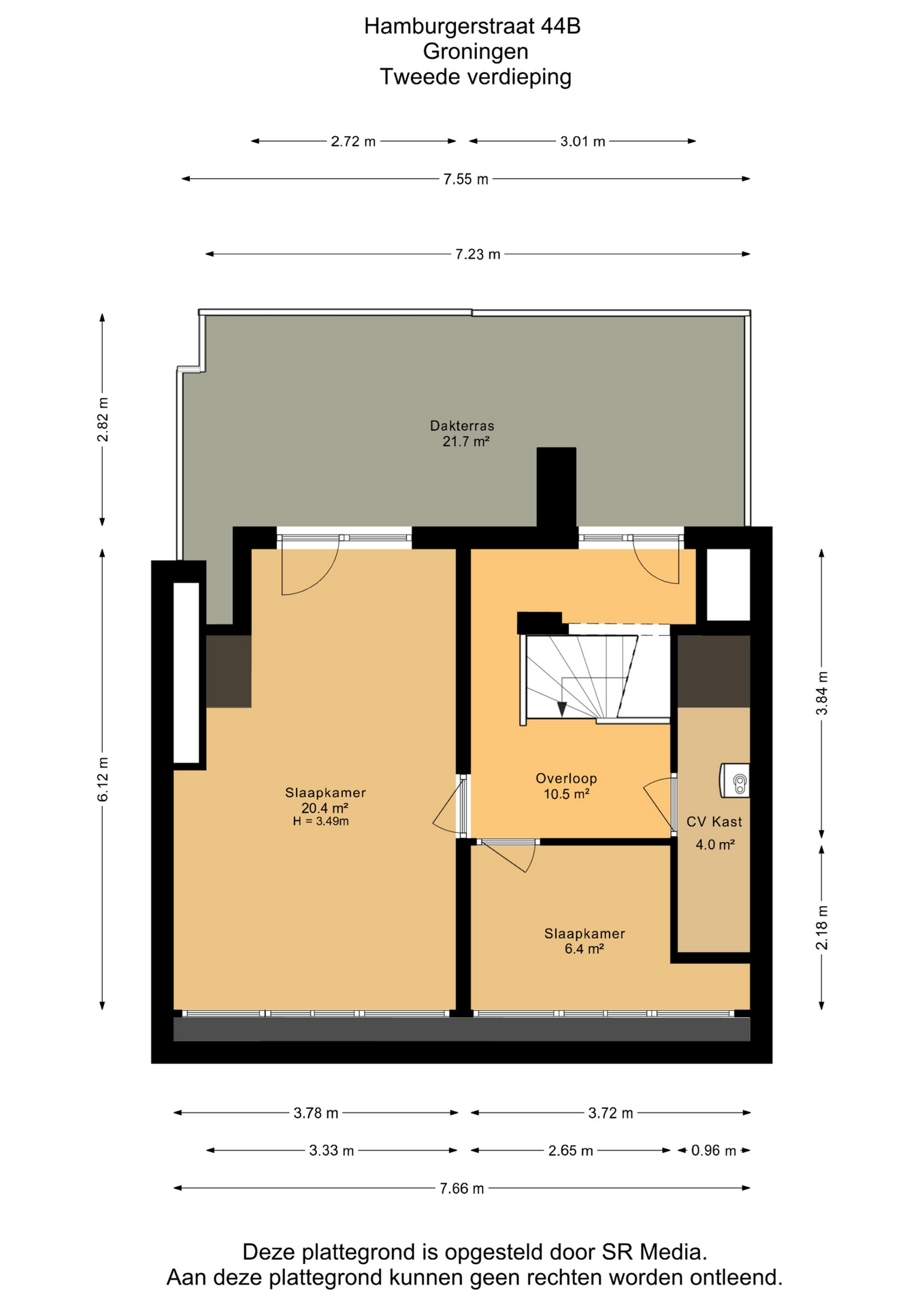
Tweede verdieping: via de vaste trap kom je op de tweede verdieping, waar de recent geplaatste dakopbouw een enorme hoeveelheid extra leefruimte heeft gecreëerd. Hier tref je een royale en bijzonder lichte slaapkamer die direct toegang geeft tot het prachtige dakterras. De kamer is voorzien van airconditioning, waardoor het hier in alle seizoenen aangenaam vertoeven is. Het dakterras zelf biedt ruim 21m² aan buitenruimte, ideaal om te loungen, te dineren of tot laat in de avond van de zon te genieten. Vanaf hier heb je een schitterend uitzicht over de daken van de Professorenbuurt en richting de stad.

Op dezelfde verdieping bevindt zich nog een tweede slaapkamer, die uitstekend dienst kan doen als werkkamer, hobbyruimte of inloopkast. De ruime overloop biedt bovendien extra mogelijkheden voor bijvoorbeeld een werkplek of zitje. Tot slot is er een praktische technische ruimte met onder meer de opstelling van de hybride warmtepomp en extra bergruimte.

INFO:
- Volledig gerenoveerde bovenwoning;
- Twee balkons en een riant dakterras;
- Moderne keuken en luxe badkamer;
- Dakopbouw recent gerealiseerd;
- Energiezuinig, label A+++;
- Vrijstaande stenen berging;
- Instapklaar en hoogwaardig afgewerkt;
- Bijdrage VvE €100,- per maand;
- Niet bewoningsclausule van toepassing.

Een woning als deze – met hoogwaardige afwerking, uitzonderlijk veel buitenruimte en een toekomstbestendig energielabel – komt maar zelden beschikbaar in de Professorenbuurt. Wacht dus niet te lang en ervaar zelf de luxe, de ruimte en de rust die Hamburgerstraat 44b te bieden heeft. Wij leiden je graag rond tijdens een bezichtiging.

*Deze informatie is door ons met de nodige zorgvuldigheid samengesteld. Onzerzijds wordt echter geen enkele aansprakelijkheid aanvaard voor enige onvolledigheid, onjuistheid of anderszins, dan wel de gevolgen daarvan. Alle opgegeven maten en oppervlakten zijn indicatief.