Taxeren

0

m2 leefbare ruimte

Bed (1)

0

Slaapkamers

Blauwprint

0

Bouwjaar

Op werkelijk een unieke locatie in Zuidbroek staat deze prachtige vrijstaande woning. Een perfecte combinatie van rust, ruimte, comfort én duurzaamheid. Vanuit de achterzijde van de woning geniet je van een vrij uitzicht over het groene landschap, waar je regelmatig reeën ziet passeren – een unieke woonbeleving waar natuur en wonen in harmonie samenkomen.

Deze woning is instapklaar en met zorg onderhouden. Dankzij de moderne afwerking, comfortabele indeling en duurzame voorzieningen hoef je hier letterlijk niets meer aan te doen. De woning is verdeeld over drie volwaardige woonlagen, biedt maar liefst vijf slaapkamers, een ruime badkamer met elektrische vloerverwarming, een grote woonkamer met open keuken en diverse praktische ruimtes zoals een aangebouwde garage en bijkeuken.

Zuidbroek is een levendig en karakteristiek dorp in de gemeente Midden-Groningen, op slechts 20 autominuten van de stad Groningen. Het dorp beschikt over een eigen station met directe verbindingen naar Groningen, Winschoten en Veendam. Voor dagelijkse voorzieningen zoals een supermarkt, basisschool, huisarts, sportvereniging of horeca hoef je het dorp niet uit. De nabijheid van uitvalswegen zoals de A7 maakt Zuidbroek uitstekend bereikbaar, ook voor forenzen. Daarnaast ligt de woning aan een rustige, kindvriendelijke straat met enkel bestemmingsverkeer en volop speelgelegenheid in de buurt. De directe achterzijde van de woning grenst aan een uitgestrekt natuurgebied, waar je werkelijk elke dag geniet van rust en ruimte.

INDELING
Begane grond: je betreedt de woning via de ruime entree met trapopgang en een modern toilet met fonteintje. Vanuit hier loop je door naar de royale woonkamer, die door de vele raampartijen aan drie zijden uitzonderlijk licht en ruim aanvoelt. De woonkamer staat in directe verbinding met de open keuken, die is ingericht met nieuwe inbouwapparatuur, veel werkblad en voldoende kastruimte. Aansluitend aan de keuken vind je een praktische bijkeuken met witgoedaansluiting en toegang tot de aangebouwde garage. Deze is uitermate geschikt voor fietsen, als hobbyruimte of opslag. Zowel de garage als de berging hebben een eigen buitendeur.

Eerste verdieping: op de eerste verdieping bevinden zich drie ruime slaapkamers en een ruime badkamer. De badkamer is modern afgewerkt en van alle gemakken voorzien: een ligbad, inloopdouche, tweede toilet, wastafelmeubel en als extra luxe elektrische vloerverwarming.
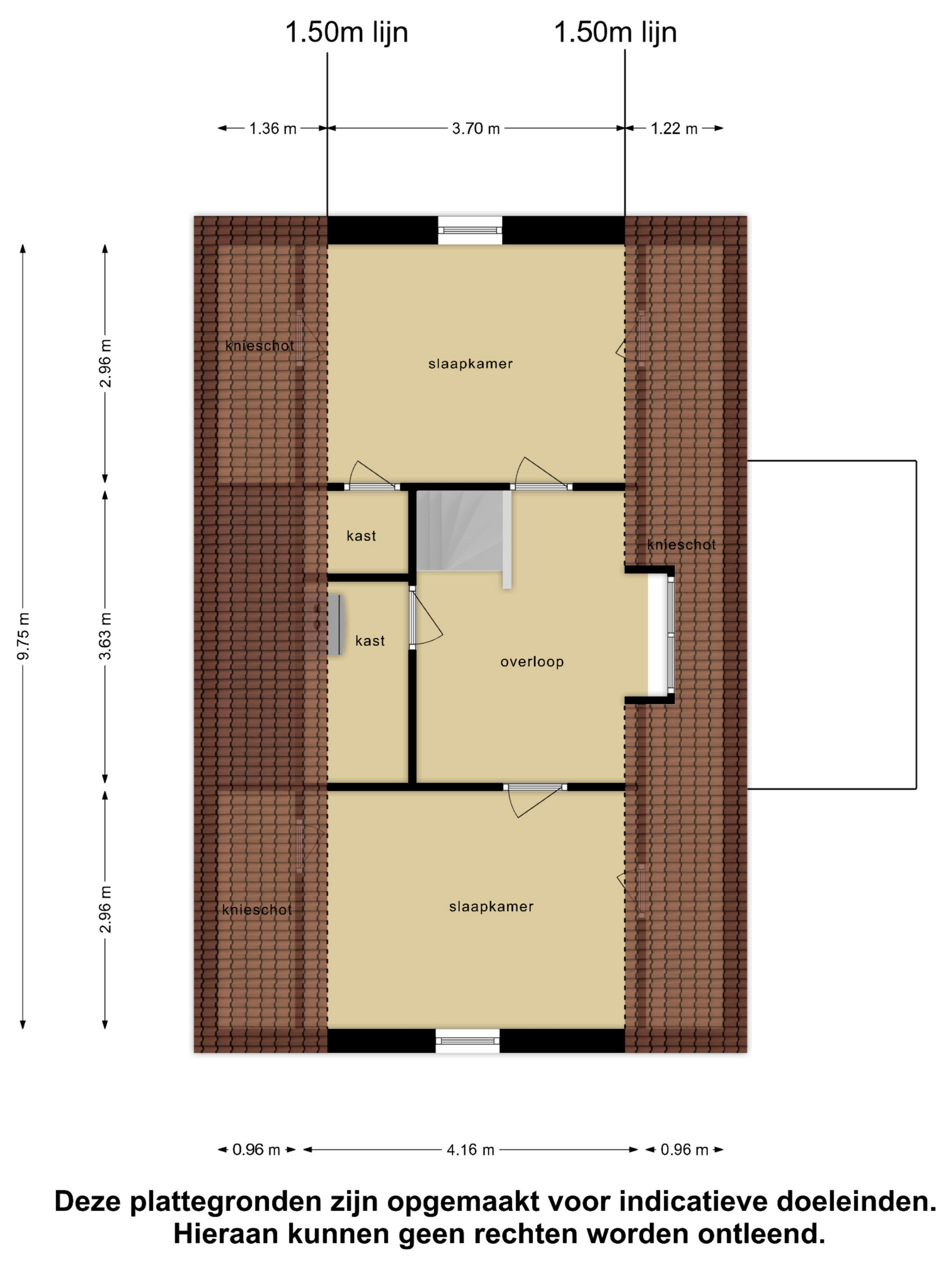
Tweede verdieping: op de tweede verdieping zijn nog eens twee slaapkamers. Onder de schuine kap zijn knieschotten geplaatst voor extra opbergruimte. Daarnaast is er een kastruime aanwezig. Deze verdieping is uitermate geschikt als slaap-, werk- of hobbyruimte.

Buiten: de tuin is groen en ruim opgezet en grenst direct aan een uitgestrekt weiland, wat zorgt voor een vrij uitzicht en veel privacy. Er is een overdekte zithoek onder een pergola met begroeiing, perfect om beschut buiten te zitten. Verder zijn er meerdere terrassen en borders met vaste planten. Een fijne plek om in alle rust van het buitenleven te genieten.

Isolatie: de woning is voorzien van vloerisolatie, dakisolatie, muurisolatie, HR++ beglazing en zonnepanelen. Mede dankzij deze voorzieningen heeft de woning een energielabel A, wat garant staat voor een lage milieubelasting en toekomstbestendig woongenot.

INFO:
- Vrijstaande woning met energielabel A;
- Instapklaar, modern afgewerkt;
- Volledig geïsoleerd en voorzien van 24 zonnepanelen;
- Royale woonkamer met open keuken;
- Vloerverwarming begane grond;
- Vijf slaapkamers;
- Prachtige ligging met vrij uitzicht over het groen;
- Rustige en kindvriendelijke woonomgeving;
- Op loopafstand van station en voorzieningen;
- Slechts 20 minuten van de stad Groningen;
- Subsidie Verduurzaming en Verbetering van €10.000,- nog beschikbaar.

Interesse? Deze woning is zonder twijfel een bezichtiging waard. Laat je verrassen door de ruimte, de rust en het comfort van Haltepad 33 in Zuidbroek. Neem contact op met ons op voor een bezichtiging.

*Deze informatie is door ons met de nodige zorgvuldigheid samengesteld. Onzerzijds wordt echter geen enkele aansprakelijkheid aanvaard voor enige onvolledigheid, onjuistheid of anderszins, dan wel de gevolgen daarvan. Alle opgegeven maten en oppervlakten zijn indicatief.