Taxeren

0

m2 leefbare ruimte

Bed (1)

0

Slaapkamers

Blauwprint

0

Bouwjaar

Aan de Groote Veen 14 in Eelde staat deze moderne en goed onderhouden tussenwoning met energielabel A+. De woning is grotendeels voorzien van kunststof kozijnen met HR++ beglazing, beschikt over maar liefst vier slaapkamers, een leuke tuin met handige berging én een heerlijke ligging aan een groene strook. Een ideaal huis voor gezinnen die op zoek zijn naar comfort, ruimte en een fijne woonomgeving.

De woning is gelegen in de geliefde wijk Groote Veen in Eelde. Deze jonge en kindvriendelijke wijk wordt gekenmerkt door veel groen, speelvoorzieningen en een rustige woonomgeving. Voorzieningen zoals scholen, kinderopvang, sportfaciliteiten en supermarkten bevinden zich op korte afstand. Daarnaast ligt Eelde gunstig ten opzichte van Groningen en Assen: met de auto of bus ben je in circa 15 minuten in de stad. Ook het mooie natuurgebied van het Paterswoldsemeer en de omliggende bossen liggen vlakbij, ideaal voor een wandeling of fietstocht.

INDELING
Begane grond: je komt binnen via de entree met meterkast, toilet en trapopgang. De ruime woonkamer is tuingericht en heeft openslaande deuren naar de achtertuin, waardoor er veel licht naar binnen valt. Aan de voorzijde bevindt zich de keuken welke voorzien is van verschillende inbouwapparatuur. De begane grond is voorzien van vloerverwarming.

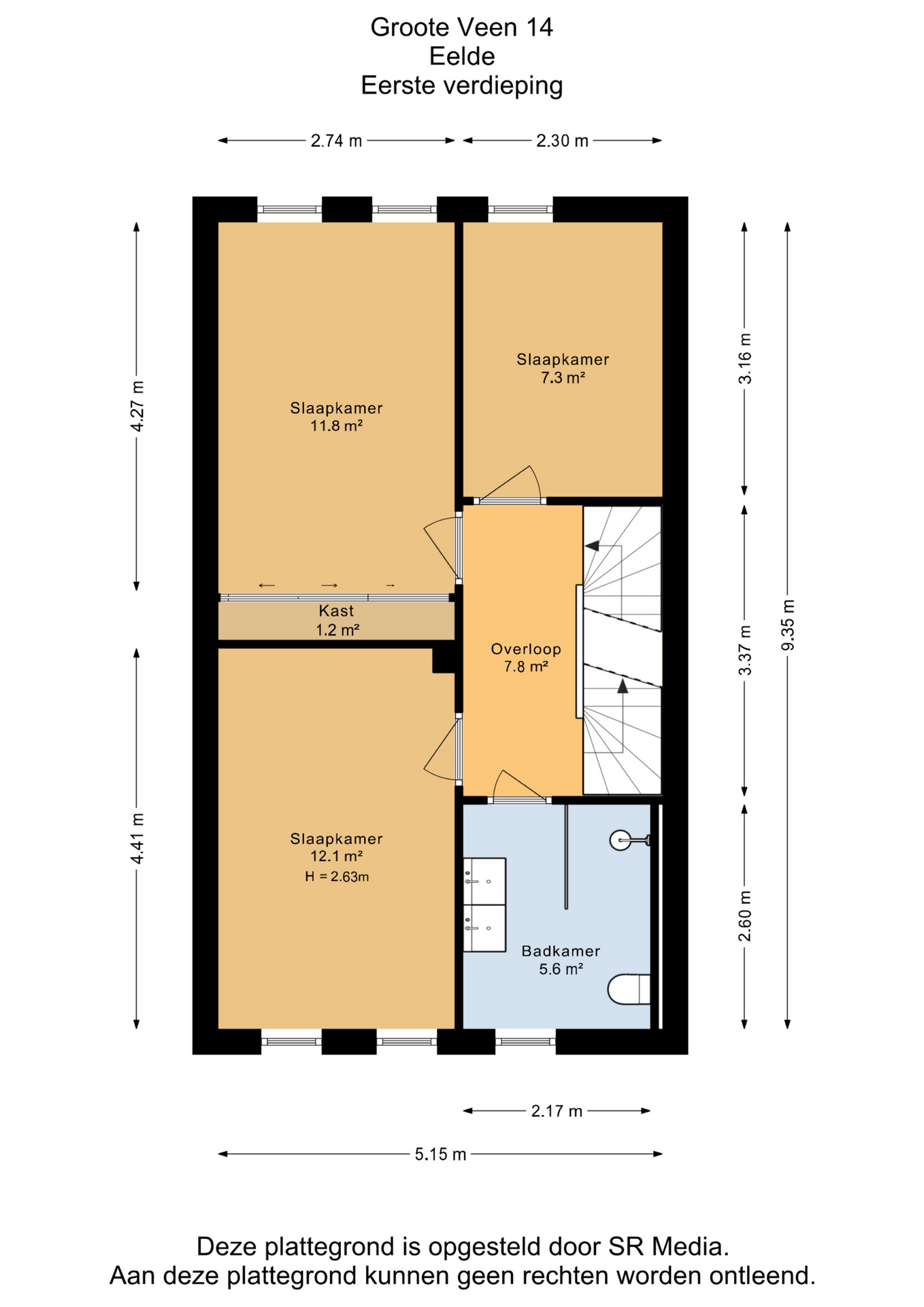
Eerste verdieping: vanaf de overloop heb je toegang tot drie slaapkamers en de badkamer. Aan de achterzijde liggen twee ruime slaapkamers waarvan de grootste slaapkamer beschikt over een grote inbouwkast. De derde slaapkamer vind je aan de voorzijde. De badkamer is praktisch ingericht met inloopdouche, dubbele wastafel met bijbehorend meubel en een toilet. Deze verdieping is ook voorzien van vloerverwarming.

Tweede verdieping: op de tweede verdieping vind je een ruime overloop en de vierde slaapkamer. Op deze verdieping heb je veel extra bergruimte , een berging op de overloop en er zijn knieschotten op zowel de overloop als in de slaapkamer. Deze verdieping kun je ook perfect gebruiken als werkkamer of hobbyruimte.

Buitenruimte: de achtertuin is onderhoudsarm aangelegd en beschikt over een handige berging, een vrijstaande overkapping en de tuin is achterom te bereiken. Aan de voorzijde van de woning is een knusse voortuin aanwezig. Door de ligging aan een groenstrook geniet je aan de voorzijde van de woning van rust en een mooi uitzicht.

INFO:
- Energiezuinige woning met label A+;
- Grotendeels kunststof kozijnen met HR++ glas;
- Lichte woonkamer met openslaande deuren;
- 4 slaapkamers;
- Begane grond en eerste verdieping vloerverwarming;
- Onderhoudsarme tuin met berging;
- Gelegen aan een groenstrook;
- Kindvriendelijke wijk Groote Veen in Eelde;
- Centrale ligging nabij voorzieningen, natuur en uitvalswegen.

Kortom: ben jij op zoek naar een ruime, energiezuinige gezinswoning met veel comfort én een fijne ligging? Maak dan snel een afspraak voor een bezichtiging voor het Groote Veen 14 in Eelde!

*Deze informatie is door ons met de nodige zorgvuldigheid samengesteld. Onzerzijds wordt echter geen enkele aansprakelijkheid aanvaard voor enige onvolledigheid, onjuistheid of anderszins, dan wel de gevolgen daarvan. Alle opgegeven maten en oppervlakten zijn indicatief.