Taxeren

0

m2 leefbare ruimte

Bed (1)

0

Slaapkamers

Blauwprint

0

Bouwjaar

Ontdek deze ruime vrijstaande woning, met vele mogelijkheden, gelegen op misschien wel het mooiste plekje van Engelbert! De woning is gelegen op een groot perceel, levensloopbestendig en beschikt o.a. over een zeer grote aangebouwde garage en een vrijstaande schuur van 217m2.

Engelbert is een dorp gelegen nabij de stad Groningen, bekend om zijn rust, natuur en gemoedelijke sfeer. Omringd door groene weilanden, kronkelende fietspaden en prachtige wandelroutes biedt Engelbert een ideale balans tussen het plattelandsleven en de nabijheid van de stad. De goede bereikbaarheid van de stad Groningen zorgt ervoor dat je binnen enkele minuten in het bruisende centrum bent, met al zijn winkels, restaurants en culturele activiteiten. Engelbert is daarom niet alleen een plek voor rustzoekers, maar ook voor wie het beste van twee werelden wil combineren.

Indeling:


Begane grond: bij binnenkomst in de woning valt direct de ruime opzet op. In de hal bevinden zich de meterkast, toilet en trapopgang. De entree leidt naar een gezellige woonkamer met vrij uitzicht over de groene omgeving. Aangrenzend bevindt zich de eetkamer, die in open verbinding staat met de keuken. De keuken is ruim en functioneel opgezet, voorzien van voldoende opbergruimte en ruimte voor een eethoek, ideaal voor een gezin. Bij de keuken bevinden zich prachtige openslaande deuren die directe toegang bieden tot de tuin. Deze deuren zorgen voor een heerlijk lichtinval en verbinden binnen en buiten op een natuurlijke manier. Aan de andere kant van de woning is een royale slaapkamer, gelegen naast de badkamer welke is voorzien van inloopdouche en een wastafelmeubel. De woning beschikt verder over een tweede kamer op de begane grond die als kantoor, hobbykamer of extra slaapkamer kan dienen. Aan de achterkant van de woning is nog een bijkeuken. Vanuit de bijkeuken is er directe toegang tot de ruime garage met een aparte berging, perfect voor opslag en kluswerkzaamheden.

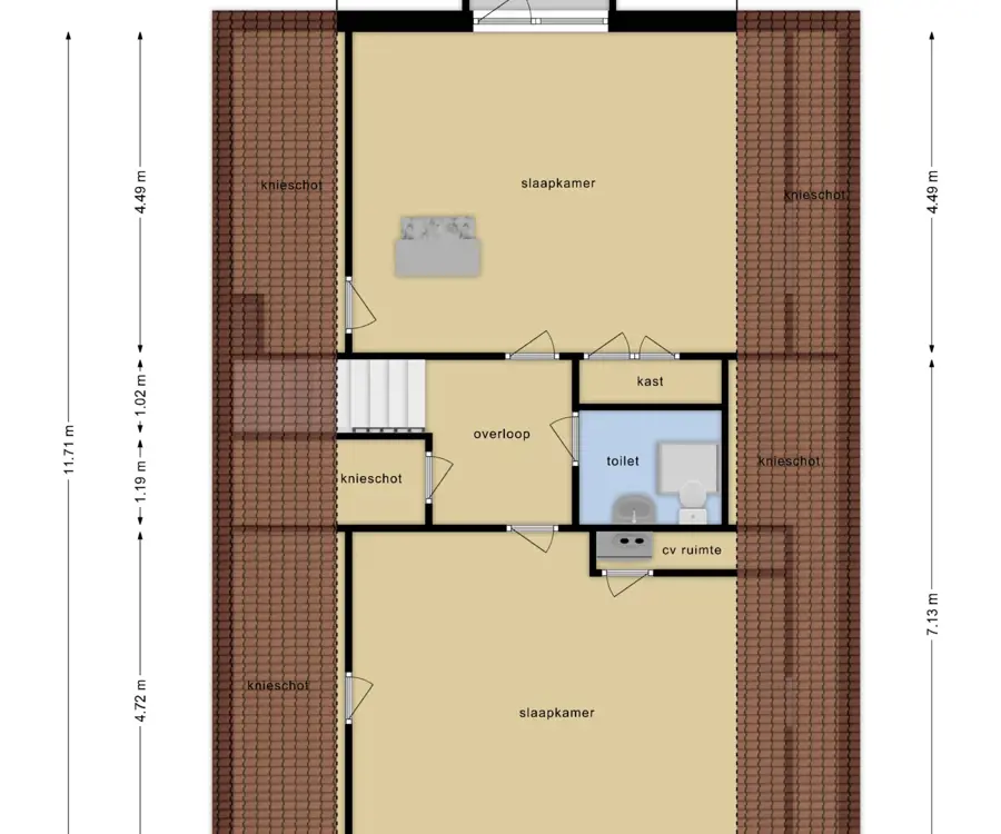
Eerste verdieping: op de eerste verdieping bevinden zich twee royale slaapkamers, waarvan één met een balkon. Beide kamers bieden volop ruimte en zijn voorzien van praktische knieschotten, die zorgen voor extra opbergruimte zonder in te leveren op wooncomfort. Op de overloop vindt je nog een handige kast voor extra opslagmogelijkheden. Daarnaast is er op deze verdieping een apart toilet en een wastafel aanwezig. Deze ruimte kan een met een paar kleine aanpassingen als volwaardig tweede badkamer in gebruik worden genomen.

Buiten: de woning is gelegen op een ruim perceel en beschikt over een fraai aangelegde tuin rondom, waardoor er altijd wel een plek is om van de zon te genieten. De ruime opzet van het perceel biedt volop privacy en rust. Daarnaast is er meer dan voldoende parkeergelegenheid op eigen erf, wat ideaal is voor meerdere voertuigen of bezoek. Achter op het perceel bevindt zich een ruime schuur van maar liefst 217 m², perfect voor extra opslag, hobby's of andere doeleinden.

Info:

- Woonoppervlak van 170 m2;
- Energielabel C (10 zonnepanelen);
- Levensloopbestendig;
- Riante garage;
- Landelijk gelegen;
- Schuur van 217 m2;
- Centrum van Groningen op 15 minuten rijden;
- Niet bewoningsclausule van toepassing.

Kortom, Engelbert is niet zomaar een plek om te wonen – het is een unieke locatie die de rust van het platteland combineert met de levendigheid van de stad, waardoor het een ideale plek is voor wie het beste van beide werelden zoekt.

*Deze informatie is door ons met de nodige zorgvuldigheid samengesteld. Onzerzijds wordt echter geen enkele aansprakelijkheid aanvaard voor enige onvolledigheid, onjuistheid of anderszins, dan wel de gevolgen daarvan. Alle opgegeven maten en oppervlakten zijn indicatief.