Taxeren

0

m2 leefbare ruimte

Bed (1)

0

Slaapkamers

Blauwprint

0

Bouwjaar

Ruime en moderne hoekwoning met 5 slaapkamers, eigen parkeerplaats, vrij uitzicht & energielabel A!

In de geliefde en jonge woonwijk Groote Veen staat deze royale hoekwoning met vijf slaapkamers, een ruime woonkamer, een prachtige veranda, eigen parkeerplaats en vrij uitzicht over groen en een vijverpartij aan de achterzijde. In de zomer kan je hier vissen of bootje varen en in de winter kan je zelfs schaatsen. De woning is volledig geïsoleerd, voorzien van kunststof kozijnen, beschikt over energielabel A en is geheel voorzien van vloerverwarming. Dankzij de grote kunststof dakkapel op de tweede verdieping is er extra comfortabele woonruimte gerealiseerd.

De woning is gelegen in de geliefde wijk Groote Veen in Eelde. Deze jonge en kindvriendelijke wijk wordt gekenmerkt door veel groen, speelvoorzieningen en een rustige woonomgeving. Voorzieningen zoals scholen, kinderopvang, sportfaciliteiten en supermarkten bevinden zich op loopafstand. Daarnaast ligt Eelde gunstig ten opzichte van Groningen en Assen: met de auto of bus ben je in circa 15 minuten in de stad. Landgoed Vosbergen ligt binnen vijf minuten wandelen en vanaf daar kun je eindeloos de omliggende natuur en bossen verkennen.

INDELING
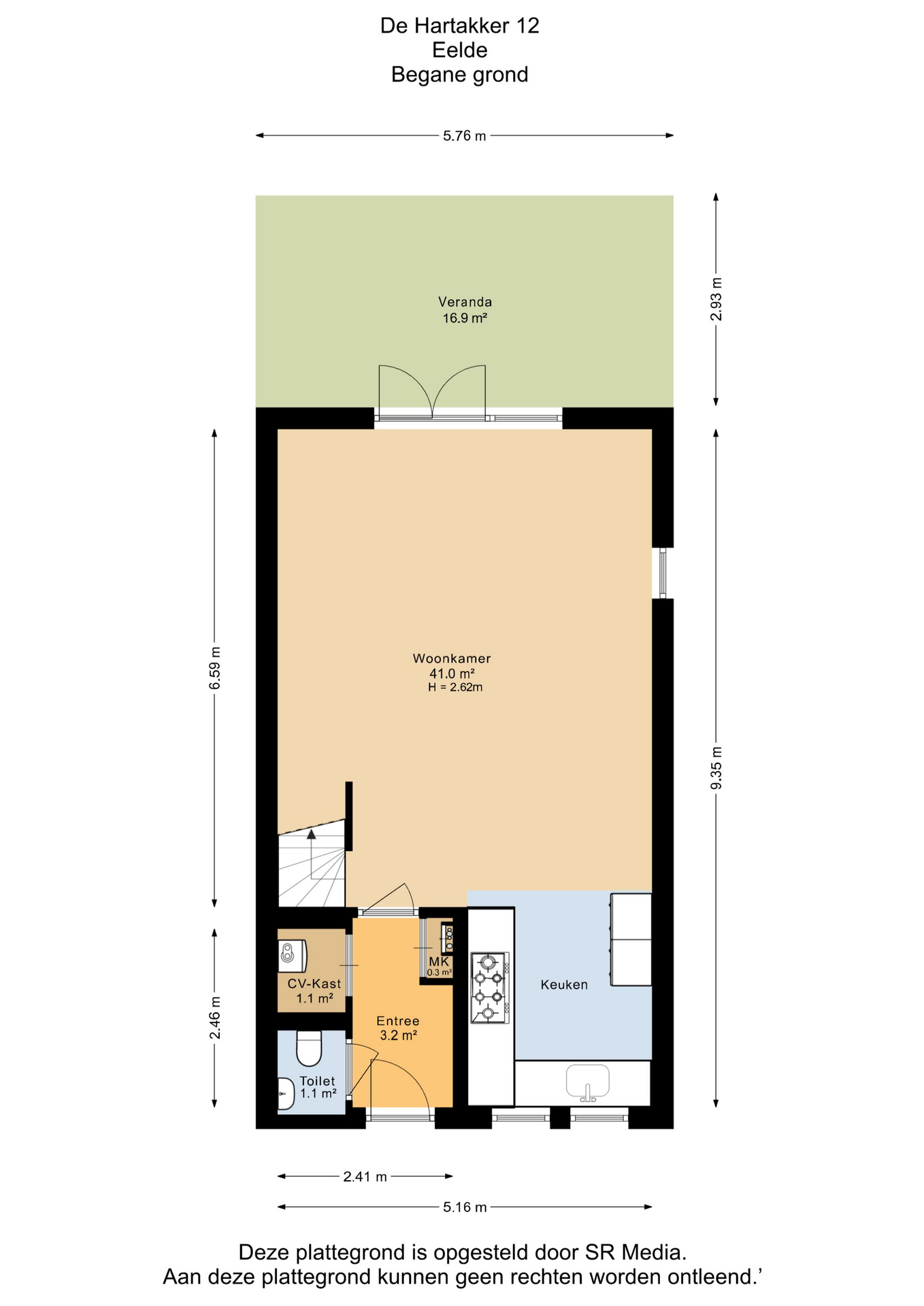
Begane grond: via de voortuin met eigen parkeerplaats bereik je de entree. De hal biedt toegang tot het toilet, de meterkast en een praktische bergruimte met de cv opstelling. Bij binnenkomst in de woonkamer bevindt zich de moderne open keuken aan de voorzijde van de woning en biedt een prettig uitzicht over de tuin. De opstelling is praktisch en biedt veel werk- en opbergruimte. De ruime woonkamer (ca. 41 m²) is heerlijk licht dankzij de grote raampartijen en biedt een fraai uitzicht richting de achterzijde. Vanuit hier stap je direct de royale veranda op waar je in alle rust kunt genieten van de groene omgeving.

Eerste verdieping: via de trap kom je op de lichte en overzichtelijke overloop van de eerste verdieping. Hier bevinden zich drie slaapkamers. De badkamer is compleet uitgevoerd met een whirlpool, regendouche, wastafelmeubel en een hangend toilet.

Tweede verdieping: de tweede verdieping is een volwaardige woonverdieping geworden dankzij de recente verbouwing met een grote kunststof dakkapel. Hierdoor is veel extra leefruimte ontstaan en valt er aangenaam veel daglicht binnen. De overloop is praktisch gesitueerd en geeft eenvoudig toegang tot twee slaapkamers. Daarnaast is er extra ruimte voor de witgoedopstelling met extra bergruimte. Bovendien is er volop bergruimte aanwezig door de handige knieschotten. Ook de gehele tweede verdieping is voorzien van vloerverwarming met koelfunctie.

INFO:
- Energielabel A;
- Volledig geïsoleerd;
- Geheel voorzien van vloerverwarming;
- Tweede verdieping met kunststof dakkapel;
- Vijf slaapkamers;
- Eigen parkeerplaats;
- Vrij uitzicht over groen en vijver;
- Nog geen bevingsschade geclaimd (subsidiekansen volledig open).

Ben je op zoek naar een ruime, moderne en energiezuinige woning op een prachtige plek in Eelde? Dan is De Hartakker 12 absoluut een bezichtiging waard. Wij laten je deze fijne woning graag in alle rust zien.

Neem gerust contact met ons op voor het plannen van een afspraak – je bent van harte welkom!

*Deze informatie is door ons met de nodige zorgvuldigheid samengesteld. Onzerzijds wordt echter geen enkele aansprakelijkheid aanvaard voor enige onvolledigheid, onjuistheid of anderszins, dan wel de gevolgen daarvan. Alle opgegeven maten en oppervlakten zijn indicatief.